Krejcárek

Pět věží mezi kolejištěm a panoramatem Prahy

 

Pět domů, vyskládaných v řadě na jedné společné parkovací podnoži, je vklíněno mezi kolejiště navazující na Libeňské nádraží a Novovysočanskou ulici. Historicky se jedná o místo bývalé nouzové a později zahrádkářské kolonie Krejcárek.

Nový obytný soubor navazuje na vrstevnatou historii lokality a současně nabízí moderní městské bydlení. Charakter místa definují všudypřítomné linie lidských cest, které striktně vymezily prostor výstavby. I proto jsme je symbolicky vtiskli do reliéfu omítek a v dalších podobách se objevují v designu celého pětidomí.

 

Vůči rušné komunikaci se celý soubor vymezuje průběžnou betonovou zdí. Vzhledem k výškovému rozdílu je zástavba umístěna o úroveň níže, čímž vzniká chráněné veřejné prostranství se zelení.

 

Zátěž, kterou s sebou přináší bydlení v těsné bízkosti frekventovaných dopravních sítí, kompenzují unikátní výhledy na panorama Prahy.

 

Domy mají jednotné tvarosloví. Jihozápadní obytné fasády s průběžnými uskakujícími lodžiemi vybíhají z obdélníkového půdorysu a postupně se odklánějí od hlukem zatížené Novovysočanské. 

Zvolené odstupy a úhel natočení umožňují většině bytů profitovat jak z výhledů, tak i ze světla a soukromí.

 

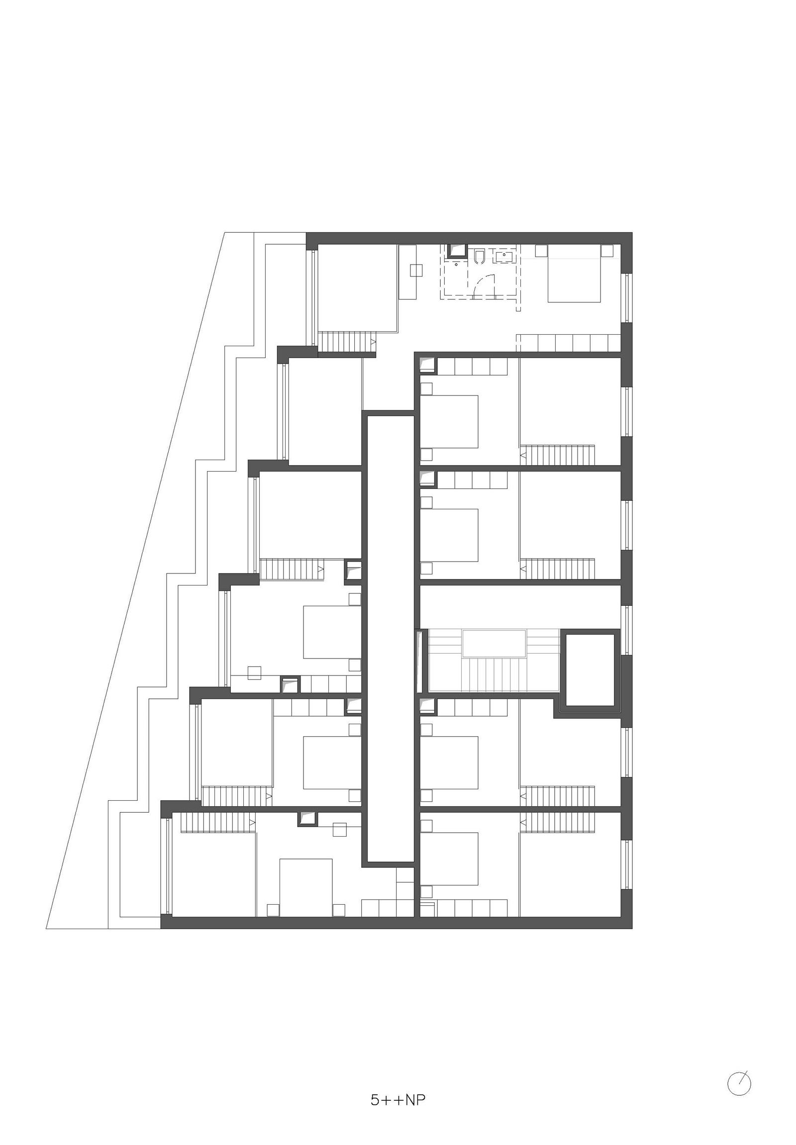
Každý z domů dosahuje výšky pěti plných a jednoho mezonetového podlaží. 

 

Jihozápadním fasádám dominuje předsazená ocelová konstrukce s balkony. Zábradlí a dělící stěny tvoří svislé kovové pásy. 

 

Protilehle na severovýchodní straně striktně člení fasády vysoká vertikální okna, která vždy doplňuje horizontální parapetní římsa. 

 

Nosná konstrukce domů je železobetonová. Fasády jsou omítnuty světle šedou drážkovanou omítkou.

Výplně otvorů a kovové prvky v antracitovém odstínu se pak opakují i v interiérech.

 

V chodbách je použita terazzová dlažba, stropy jsou ponechány jako pohledový beton. 

 

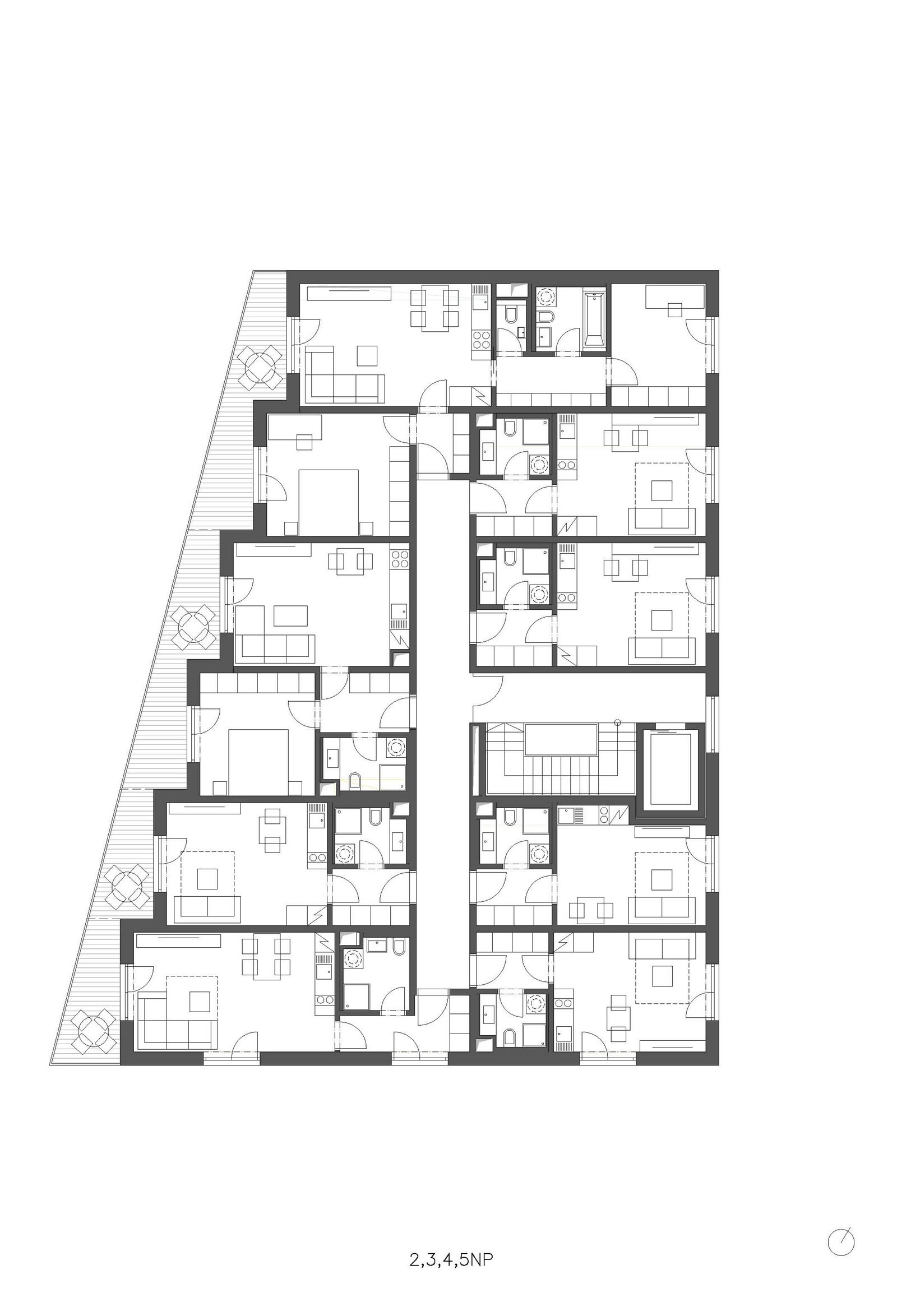
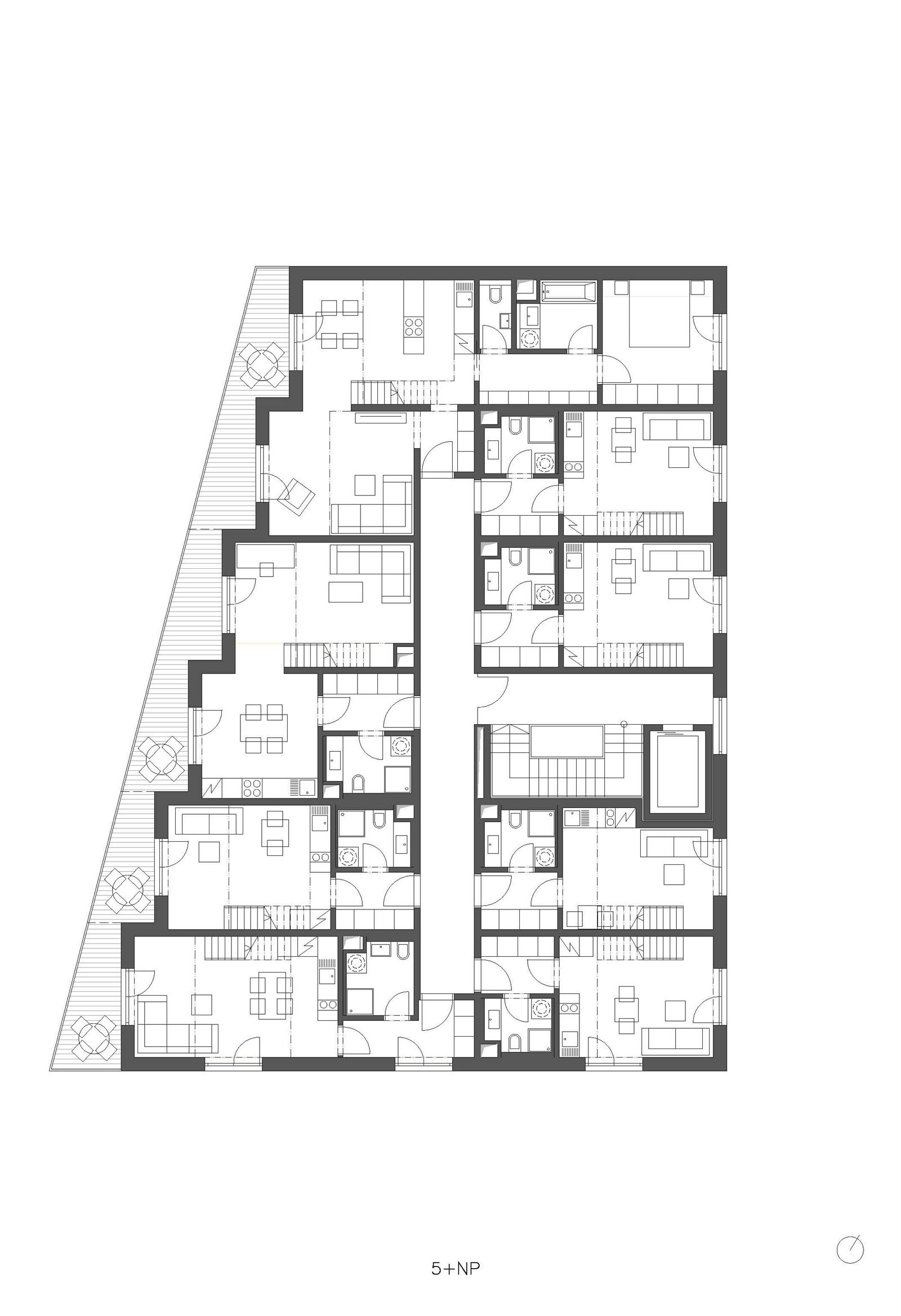
Na stěnách se znovu objevuje drážkovaná omítka. Schodiště je nepřímo osvětlené a vede k bytům různých dispozic, od 1kk až 3kk, po lofty umístěné v nejvyšších patrech. 

 

K bytům umístěným v parteru patří předzahrádky. Všech pět věží propojuje podzemní parkoviště v částečně otevřeném suterénu. Ten je řešen s ohledem na prostorové možnosti terénu.

 

V čele lineárního parku, za kterým je ukryta rampa do podzemních garáží, doplňuje celkovou kompozici pískovcová skulptura na motivy tří ženských postav od sochaře Petra Váni.

Data projektu

Lokalita
Praha 9 – Krejcárek, Novovysočanská 2509/3b – 3f
Typ stavby
bydlení (novostavba)
Autor návrhu
Milan Jirovec, Matyáš Sedlák, Klára Sedláková
Spolupracující achitekti
Marek Macejko
Investor
EDIFICE Krejcárek, s.r.o. / Patrick Buck, Jan Horčička
Projekt
2017
Realizace
2019
Rozsah projektu
11 700 m² HPP
Počet bytů
291
Náklady
290 mil. Kč
Projektant
AKK s. r. o. (DUR, DSP), m3m s.r.o. (DPS) Martin Kovařík
Stavební management
EDIFICE construction & consulting, s.r.o. / Jan Horčička Jiří Král
Foto
Filip Šlapal
Video
Denobulla Films