Břetislavka

Obnova lokálního centra v pražských Dejvicích

 

Projekt obnovy lokality na křižovatce Šáreckého a Lysolajského údolí navázal na historický charakter místa a vrátil mu roli přirozeného centra, kde se dříve odehrával čilý společenský život. Hostinec Na Břetislavce, včetně sokolovny a několika přístaveb, prošel řadou zásahů a jeho stav výrazně zhoršily povodně v roce 2002. Projekt zahrnoval jak rekonstrukci historické budovy, tak novostavbu ubytovací části.

 

Dřevěný obklad volně navazuje na charakter místa. Volba tohoto materiálů přenechala dominantní postavení bývalému hostinci a zachovává jeho jedinečnost. Ten byl očištěn od přístaveb a díky stále existující dobové dokumentaci mu byla kompletně navrácena původní štuková výzdoba.

 

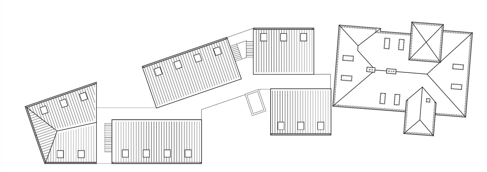
Návrh vycházel z přesné katastrální stopy sokolovny a přilehlých staveb. Požadovaný objem působil v kontextu místa i sousední historické budovy příliš robustně, proto vznikl koncept „rozlámání“ klasické hmoty do menších celků jednotlivých domů, s tradiční sedlovou střechou, propojených pavlačí. Stopa původních staveb byla dodržena.

 

Novostavby stojí na podnoži garáží. Celý areál leží v záplavovém území, a proto muselo být první nadzemní podlaží umístěno minimálně 1 metr nad nejvyšší úrovní zaznamenané povodně.

 

Pavlače vynesené na isonosnících si zachovávají subtilnost a pohledovost konstrukčního betonu.

 

Objekt je navržen jako železobetonový monolit, včetně konstrukce šikmých střech. Řešení přispívá k tepelné stabilitě a zachovává příjemné klima v podkroví.

 

Jednotlivé objekty jsou z vnější části obloženy modřínovým dřevem, vnitřní fasády, v souladu s konceptem “rozřezaných hmot", se typem a vzhledem omítky odlišují.

Čas pracuje. Rok 2017 a rok 2025.

Data projektu

Lokalita
Praha 6 – Dejvice, V Šáreckém údolí 1
Typ stavby
komerce – restaurace a byty (rekonstrukce a novostavba)
Autor návrhu
Matyáš Sedlák, Miroslav Holubec, Milan Jirovec
Spolupracující achitekti
Marek Blank, Jakub Vysoký, Tomáš Fejkl
Investor
Egida CZ s.r.o.
Projekt
2009 - 2014
Realizace
2015 - 2017
Rozsah projektu
novostavba 1782 m2
Počet bytů
22 bytů
Náklady
82 mil. Kč
Projektant
Konsit a. s.
Stavební management
Foto
Štěpán Látal a Petra Hajská
Video
Denobulla Films